Skip to main content

CCA1198 / Building on Green Belt Land – Corner House, London

Replacement Dwelling / Hertfordshire

image of a large house located on green belt land in London

Project Details

  • Client Private
  • Location Chandlers Cross, Hertfordshire
  • Size Circa 550 sqm
  • Sectors Living

Cannon Clarke Group secured Planning Approval for an enlarged replacement dwelling, Corner House, in ‘Green-belt’ land on the outskirts of London.

Given its located on Green Belt land, this project faced significant planning challenges. The client had a previous application by another architect refused because of Local Planning Policies which minimised increased development on the plot.

Cannon Clarke made the case to the planners that, through Permitted Development Rights, substantial enlargement of the property would be lawful but the visual aesthetic implications and incongruous massing would not be favourable to the context.

The previous architect had designed a replacement dwelling in an ‘Arts and Crafts’ Interwar style. In contrast, Cannon Clarke Group’ response for the design of Corner House, London, was a re-imagined Georgian ‘manor’ farmhouse. By drawing inspiration from nearby historic buildings, such as York House School and Langleybury House, this approach took cues from local heritage. Ultimately, both the client and the Local Planning Authority favoured this ‘formal’ aesthetic, and planning permission was granted.

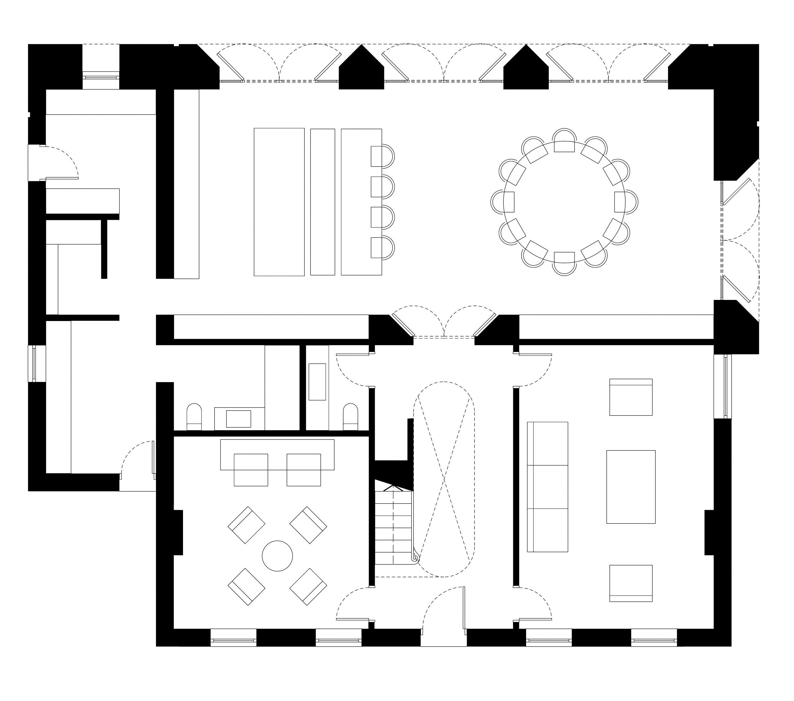
The proposed 5-bedroom house sits within semi-formal and formal landscaped gardens, which cut into the sloped topography. The house itself was designed with a double-gabled pitched roof covering two floors of accommodation. At the heart of the house, a central formal stair and triple-height void form the main entrance hall.

Additionally, the rear elevation opens the ground-floor living spaces to a terrace and reflection pool through three large arched openings. These openings feature compound curve reveals clad in small-format ceramic tiling, which offers a counterpoint to the formal Portland stone and buff brick used elsewhere.

Discuss your next high-end residential project with the team at Cannon Clarke Architects. We’ll show you how a strategic approach can help secure planning permission.

Contact Us