Skip to main content

CAA1311 / Sustainable New Build Development

New Build Development / Norfolk

Water Moor Land new build development in Fakenham

Project Details

  • Client Accession Marketing
  • Location Fakenham, Norfolk
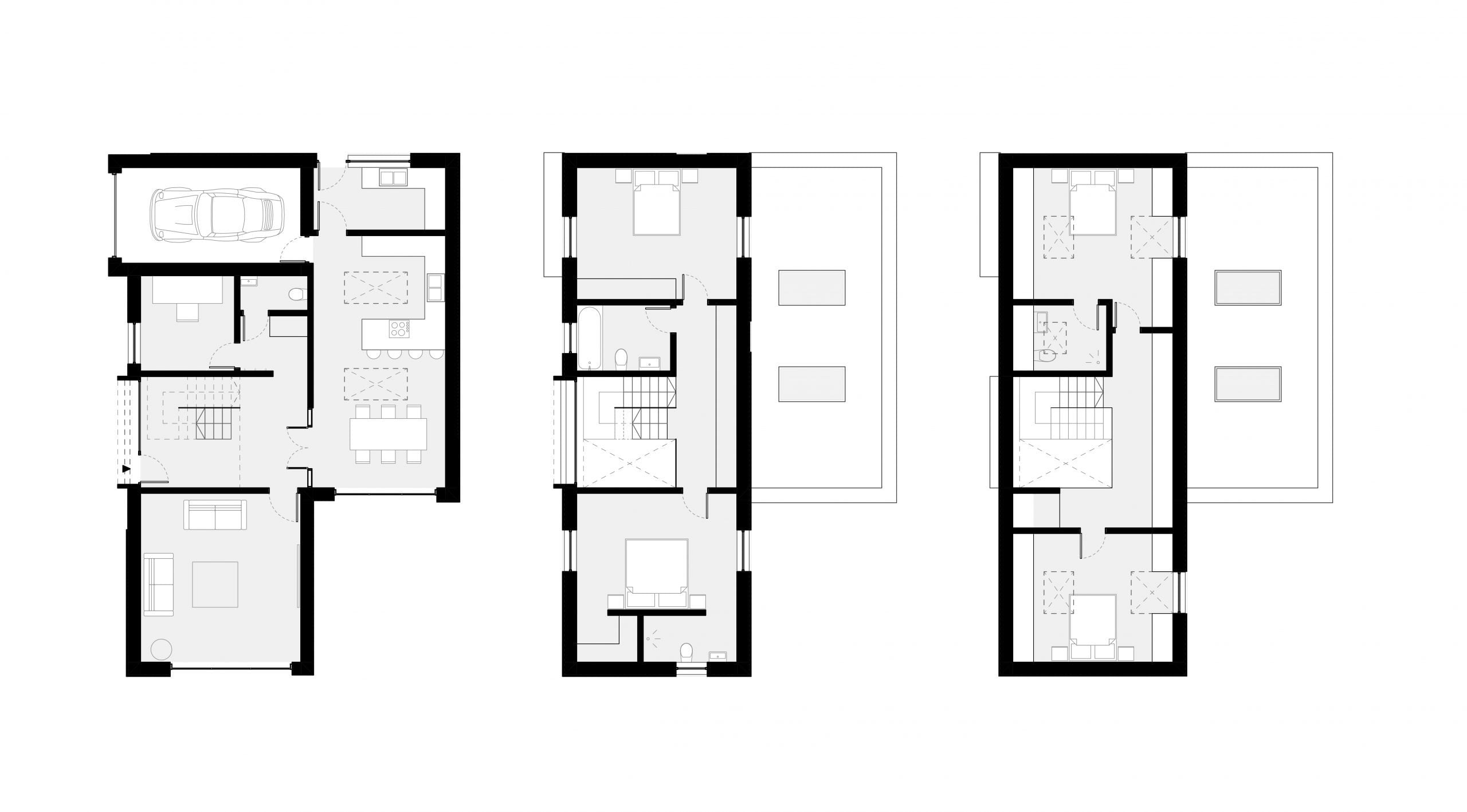
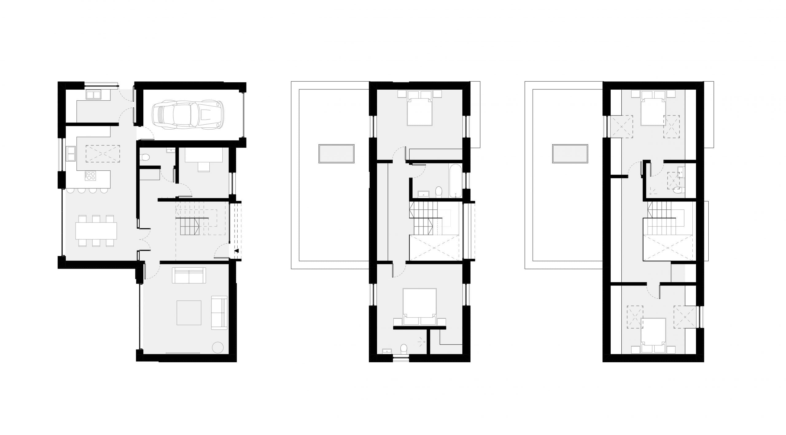
  • Size 7 no. 3 and 4 bed detached dwellings on 0.4 ha site
  • Sectors Living

Cannon Clarke Group have designed a distinctive sustainable new-build development, Water Moor Lane in Fakenham, of 7 new dwellings. An inherited Outline Planning Permission for 6 dwellings was significantly re-visited in terms of site layout. Therefore, this results in an increase in development value and better quality architecture for our client.

The sustainable new build development in Fakenham includes a mix of 3-bed and 4-bed executive homes. The project is proposed on disused farmland that cuts into sloping topography, with much of the mature vegetation to the site boundaries maintained.

In order to avoid the typical vernacular flint cottage aesthetic, the development’s layout is suggestive of a barn complex or ‘grange’ and includes a central open space – as opposed to individual private front gardens and ‘Highways Standard’ adoptable road.

Furthermore, with the dwellings promoting opportunities to work from home a sense of community is engendered within the shared landscape. The site also facilitates a pedestrian route to the Town Centre. 

The dwellings are planned over three storeys, with the top floor designed as ‘room in roof’ accommodation to maximise space and functionality. Externally, a contemporary interpretation of traditional ‘agricultural’ materials has been used, blending modern aesthetics with the local character. The design also prioritises thermal efficiency, incorporating features such as the timber slat brise-soleil over the expansive glazed entrance screen to prevent the houses from overheating in warmer months.

Additionally, each home comes with a generously sized private rear garden, carefully oriented to receive ample direct sunlight, creating a pleasant and practical outdoor space for residents to enjoy.

Cannon Clarke Architect work with high-end developers who wish to maximise site value and who value good architecture.

Contact Us