Skip to main content

CCA1124 / Luxury Residential Development, Park Farm House

Luxury Dwelling / Essex

Luxury residential development of a kitchen and living area

Project Details

  • Client Private
  • Location Black Notley, Braintree Essex
  • Size 571 sqm GIA
  • Sectors Living

Taking a previously consented planning permission for alteration and extension of an interwar detached house sitting in a 5-acre plot as a starting point, Cannon Clarke have proposed a masterplan for residential development of the site as a whole.

Whilst the previously consented scheme sets the parameters and overall massing of the residential development itself. Much increased from the original dwelling, internal re-planning and organisation of spaces was required to fulfil the client’s aspirations. 

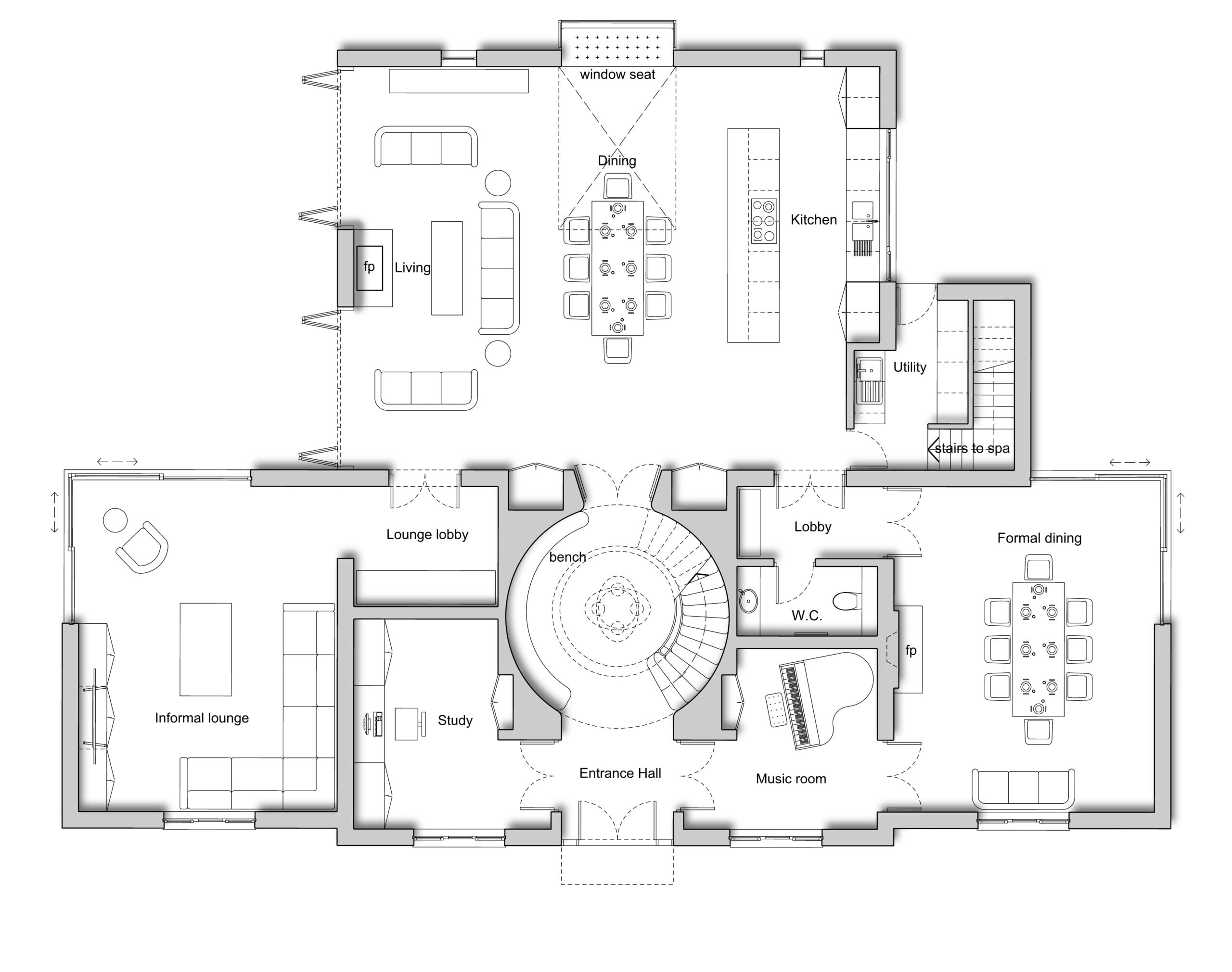
Central to this was a proposal for a ‘grand’ entrance and ‘formal’ staircase, lacking in the previous designer’s iteration.

Architectural Features and Materials

The ground floor accommodation includes living and dining spaces, both formal and informal. The informal area proposes a single open-plan extension at the rear of the property, where the kitchen sits.

The first floor features suites of bedrooms with dressing and washroom areas. Additionally, a family bathroom and a play/study space on an enlarged stair landing. The second floor holds the master bedroom, dressing room, ensuite, and also balcony areas.

The main staircase focus of the entrance lobby was achieved by precast concrete individual tread units built out from a masonry rotunda, forming a catenary arch. As a result, it enhances the overall architectural flow of the space.

 The main living space has an integral roof light/oriel window/window seat placed centrally to frame views of the gardens.

Interior materials employed include terrazzo, hardwood parquet, fluted European white oak, American black walnut and marble.

The team of Architects at Cannon Clarke secured planning permission for this luxury residential development in Braintree for the re-design of the main house and provided architectural services throughout to the point of completion.

For luxury residential design from inception to completion with attention to detail at all stages, please get in touch.

Contact Us