Skip to main content

CCA1175 / Modern House Design in Norfolk, Burgh Castle

Bespoke Private Residence / Norfolk

A New build dwelling

Project Details

  • Client Private
  • Location Casa Burgh, Burgh Castle, Norfolk
  • Size Circa 300 sqm GIA
  • Sectors Living

Located at the edge of the settlement boundary in Burgh Castle, Cannon Clarke have designed a contemporary home that redefines modern living.

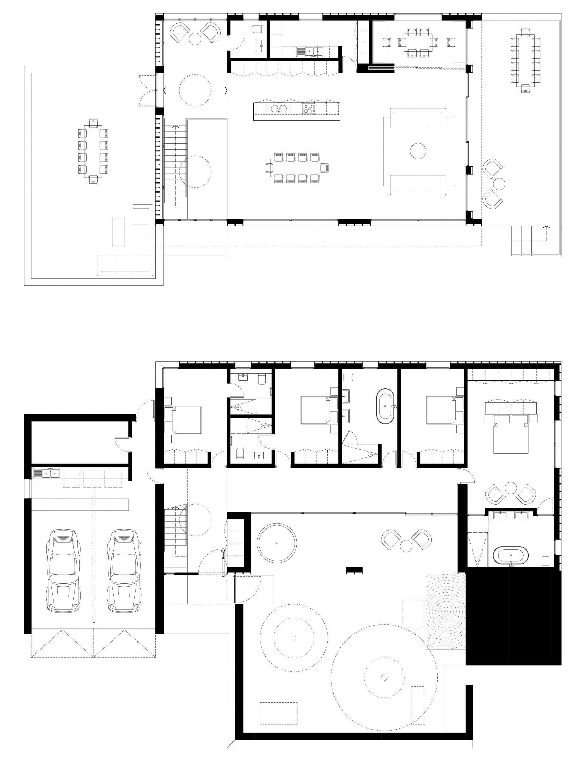
Modern house design in Norfolk inverts the traditional typology, placing living. We designed the property with cooking, eating, and study areas on the first floor to capture panoramic views across the Norfolk countryside. However, bedrooms and bathrooms are on the ground floor.

Privacy for the ground-floor bedrooms is ensured by a protective walled private courtyard that screens a glazed corridor, from which the individual rooms are accessed.

 

 

At the first floor, a back wall of functional utility spaces shields the less desirable views. In contrast, extensive full-height glazing offers sweeping vistas and floods the interior with natural daylight.

Internally, the materials in this modern house design in Norfolk include self-finished in-situ concrete, brick, plaster, and timber, all of which contribute to the minimalist aesthetic. Externally, the design incorporates Danish-sized buff/grey brick, board-mark concrete, and bronze-coloured zinc cladding. This project meets high design standards and will be considered under the new NPPF Paragraph 134 guidelines.

 

Cannon Clarke Architects helps to raise the standards of residential design and we navigate our clients through the planning process creating beautiful and truly sustainable homes. For challenging new build or self build sites, please get in touch.

Contact Us